Tenuta Vallerano - Cosvedil II

Vai ai contenuti

Menu principale:

Tenuta Vallerano

Cantieri



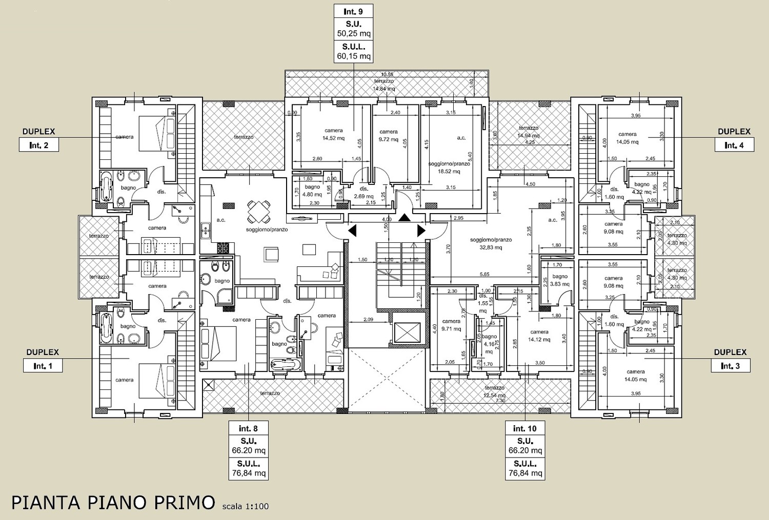
Sulla Via Laurentina, nel nuovo P.d.Z. "Tenuta Vallerano", a due passi dall’EUR sta per partire la realizzazione di una palazzina con  appartamenti tra i 50 e i 70 mq.


Clicca sulla chiocciola e scrivici per informazioni e/o appuntamenti per il P.d.Z. "Tenuta Vallerano"

 

Clicca sulla freccia per sapere come raggiungerci...

 


Clicca sul logo pdf per scaricare le piante del fabbricato

 
Webmaster: Cosvedilstaff [email protected] - ottimizzato per IPhone e IPad
Torna ai contenuti | Torna al menu